Vorige | Volgende

Kryptonstraat 24 0 ong Wehl

Bewaar object
Dit bedrijfsobject is verhuurd

Omschrijving

NIEUWBOUW! Hoogwaardig en multifunctioneel object op fraaie locatie op "Bedrijvenpark A18"!

Op Bedrijvenpark A18 ligt dit nog te bouwen moderne bedrijfsgebouw bestaande uit kantoorruimten en bedrijfsruimten.
Het object is multifunctioneel opgezet en voldoet aan de nieuwste eisen. Door de fraaie opzet is dit object met recht een visitekaartje voor uw bedrijf.

Het object wordt zeer luxe en hoogwaardig opgeleverd met uitstekende materialen en installaties. Er is airco aanwezig, laadpalen, luxe toiletgroepen en pantry’s, led verlichting en voldoet aan de hoge eisen van deze tijd.

De bereikbaarheid is uitermate goed direct met aansluiting op de A18.

Een gedeelte van het object is inmiddels verhuurd. Wij zijn op zoek naar een tweede huurder voor de kantoorruimte op de eerste verdieping en bedrijfsruimte met entresol.

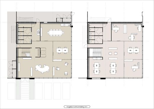
Indeling:
Begane grond:
Kantoorruimte: Entree met trapopgang.
Bedrijfsruimte: Bedrijfsruimte met entresol, overheaddeuren en elektrische heater.

Eerste verdieping:
Kantoortuin met diverse separate kantoorvertrekken en toiletgroepen (naar wens in te delen). Trap naar bedrijfsruimte.

Afmetingen:

Begane grond:

- Bedrijfsruimte 2 ca. 217 m2;
- Bedrijfsruimte 3 ca. 196 m2;

Eerste verdieping
- Kantoorruimte ca. 217 m2;
- Entresol ca. 75 m2;

Totalen:
- Kantoorruimten ca. 217 m2;
- Bedrijfsruimten ca. 413 m2;
- Entresol ca. 75 m2.

Opleveringsniveau:
Het object wordt compleet opgeleverd, te weten inclusief:
- Luxe toiletgroepen
- LED verlichting
- Pantry met modern en ruim keukenblok en inbouwapparatuur
- Alarminstallatie
- Elektrische heater
- Airco installatie
- Laadpalen

Bent u geïnteresseerd? Bel of mail ons dan voor een afspraak over de mogelijkheden.
Lees de volledige omschrijving

Kenmerken

Algemeen

Hoofdbestemming
bedrijfsruimte
Functies
bedrijfsruimte
Aanvaarding
in overleg

Details

Perceel
2645 m²
Voorzieningen
airco, betonvloer, heater, inbouwarmaturen, overheaddeuren, pantry, te openen ramen, toilet
Ligging
bedrijventerrein
Bereikbaarheid
bank op 1000 m tot 1500 m, bushalte op 500 m tot 1000 m, NS station op 1000 m tot 1500 m, ontspanning op 1000 m tot 1500 m, restaurant op 1500 m tot 2000 m, snelwegafrit op 500 m tot 1000 m, winkels op 500 m tot 1000 m
Waardering binnen
uitstekend
Waardering buiten
uitstekend
Bouwjaar
2025
Bouwperiode
vanaf 2021 t/m 2030
In aanbouw
ja

Financieel

Conditie servicekosten
per maand
BTW servicekosten
ja

Bedrijfsruimte

Bedrijfshal oppervlakte
488 m²
Bedrijfsruimte kantoor oppervlakte
217 m²
Bedrijfshal units vanaf
488

Parkeergelegenheid

Aantal parkeerplaatsen
21
Bekijk alle kenmerken

Alle foto's

Kaart Kryptonstraat 24 0 ong Wehl

naar Kryptonstraat 24 0 ong Wehl
Op 5 minuten loopafstand Op 5 minuten fietsafstand

Deel dit object